TILLBYGGNAD, HÖGLANDET, BROMMA
Förslag till tillbyggnad, fasadändring.
Status: Skisserr 2023. Endast fasadändring färdigställd 2025.
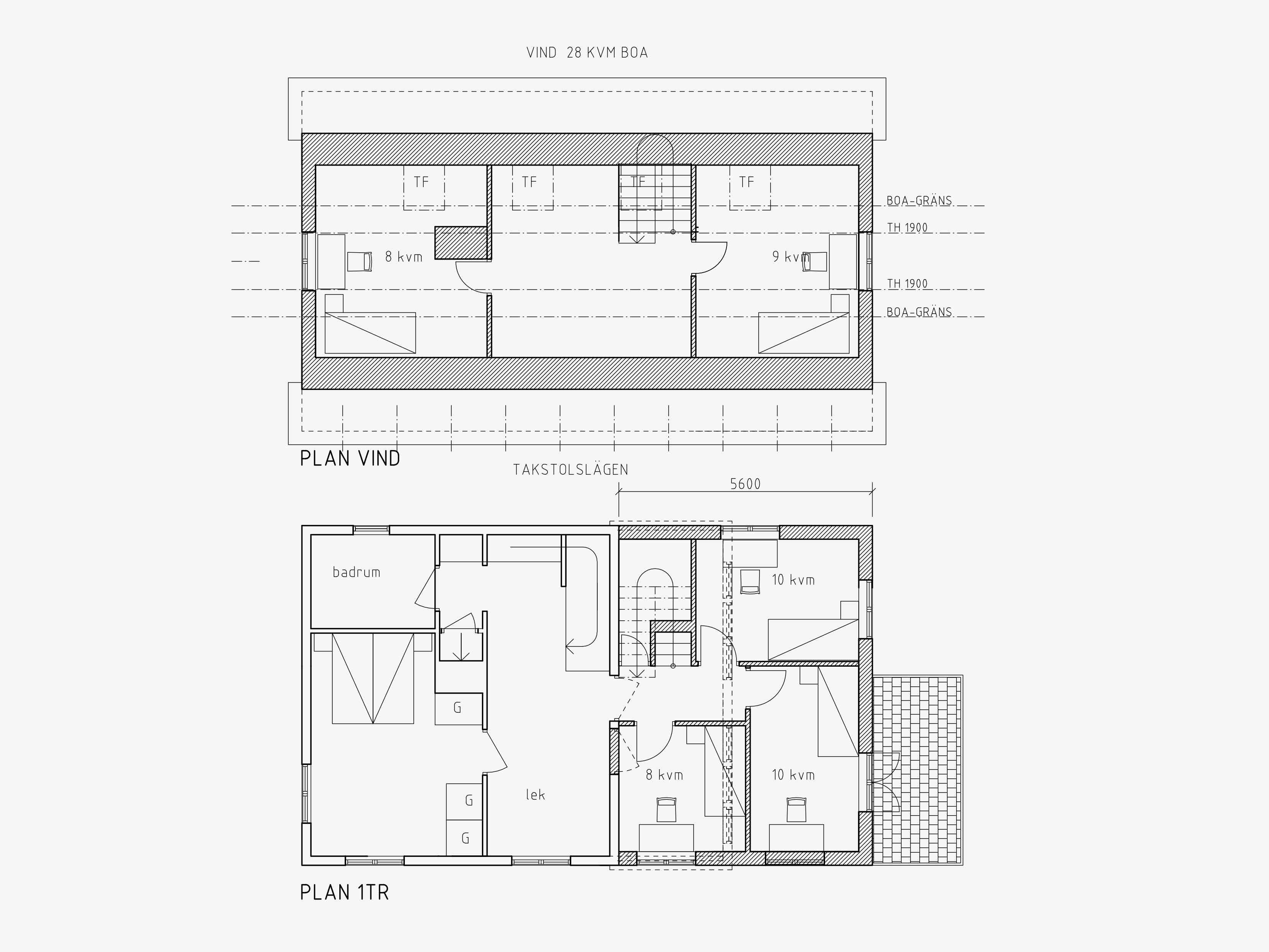
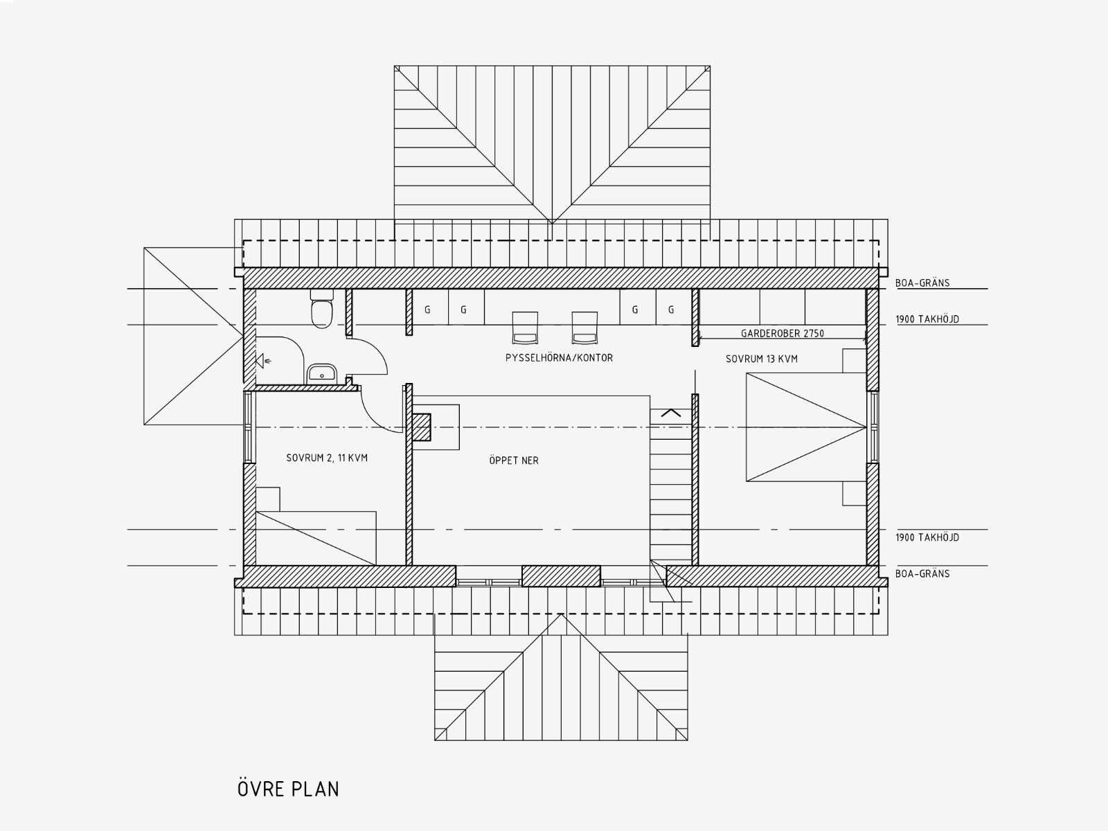
TAKLYFT, TILLBYGGNAD, VÄRMDÖ
Totalomvandling av sommarhus från slutet av 1900-talet.
Status: Bygglov 2023. Färdigställt.
OM- OCH TILLBYGGNADER, VAXHOLM
Helhetsgrepp på kraftigt ombyggd äldre villa.
Status: Skisser 2022. Bygglov 2024. Pågående bygge.
FASTIGHETSANALYS, TUMBA
Analys och skisser, flerbostadshus/fd brandstation i Tumba.
Status: Skisser 2021.
TILL- OCH OMBYGGNAD, STENHAMRA, EKERÖ
Omdisponering av entréplanet, tillbyggnad.
Status: Skisser 2021.
FASADÄNDRING, VILLA I SKARPNÄCK
Ny pardörr mot trädgården, förstorat fönster.
Status: Bygglov 2021. Utfört.
BOLUNDARE, SÖDERTÄLJE
Bolundare/gästhus. Cedershingel, loft ovan badrum.
Status: Bygganmälan 2021. Ej utförd.
POOLHUS, FASADÄNDRING, SÖDERTÄLJE
Poolhus och pergola, mindre fasadändringar.
Status: Bygglov beviljat 2021. Ej utfört.
TILLBYGGNAD, RÅDGIVNING DANDERYD
Utredningar, rådgivning och skisser om tillbyggnader och ombyggnader av villa i Danderyd.
Status: Endast ombyggnader utförda 2020-24.
GÄSTLÄGENHET, GRÖNDAL
Gästlägenhet i stor Brf, i befintligt källarutrymme. Utredningar, projektering mm.
Status: Färdigställt 2022.
TILLBYGGNAD FRITIDSHUS, VÄDDÖ,
Bygglov och bygganmälan för tillbyggnad av friditshus med två nya sovrum. Ombyggnad badrum.
Status: Bygglov beviljat 2021.
VILLA I ÄPPELVIKEN
Ombyggnad vindstrappa, fasadändringar, skisser tillbyggnader mm.
Status: Skisser, projektering mm 2019-22.
TILLBYGGNAD INGARÖ, VÄRMDÖ
Skisser och bygglov till tillbyggnader och garagebyggnad.
Status: Bygglov beviljat 2019.
LÄGENHETSOMBYGGNAD, KUNGSHOLMEN, STOCKHOLM
Förslag till spa i annekterad del av vindskontor, samt ny kamin. Blåklassad fastighet.
Status: Bygglov färdigställt 2019. Kamin inkl bygganmälan färdigställd.
FASADÄNDRING FLERBOSTADSHUS, ALVIK, STOCKHOLM
Stiländring av tillbyggnad.
Status: Bygglov färdigställt 2019. Ej utfört.
LÄGENHETSOMBYGGNAD, VASASTADEN, STOCKHOLM
Ombyggnad kök, badrum och rumsdisposition.
Status: Skisser, projektering 2019. Färdigställt.
OM- OCH TILLBYGGNAD, ESKILSTUNA
Stiländring, tillbyggnader och frontespis på en gård utanför Eskilstuna .
Status: Skisser, förenklad projektering 2018-19
TAKKUPOR, KUNGSHOLMEN
Nya takkupor på en gårdsbyggnad på Kungsholmen.
Status: Bygglov beviljat 2019.
FASADÄNDRINGAR, ÖSTERMALM
Förslag till nya balkongfronter, skyltprogram, restaurering av entrévåning.
Status: Skiss 2019.
OM- OCH TILLBYGGNAD FRITIDSHUS, STALLARHOLMEN
Nytt allrum och omorganisering av befintlig huskropp.
Status: Bygglov bygganmälan beviljade 2019.
VINDSOMBYGGNAD OCH FASADÄNDRING, NOCKEBY
Nya vindskupor, badrum på vinden och ny trappa mm..
Status: Bygglov beviljat 2018. Färdigställt.
TILLBYGGNAD, FASADÄNDRING, ÄLVSJÖ
Stilåterställning och ny farstu.
Status: Bygglov färdigställt 2018.
TILLBYGGNAD, ENTRÉTRAPPA, DJURSHOLM
En tillbyggnad i äldre stil med formelement från huvudbyggnaden.
Status: Bygglov beviljat 2017. Färdigställt.
FASADÄNDRING ÖSTERMALM
Nya takfönster mot gata och gård.
Status: bygglov beviljat 2018. Färdigställt 2018.
FRITIDSHUS, VAXHOLM
förslag till tomtplanering och ny huvudbyggnad.
Status: skisser 2018, ej utfört.
FASADÄNDRING NORRMALM
Nytt takfönster mot gata i grönklassad byggnad.
Status: bygglov beviljat 2018.
TILL- OCH PÅBYGGNAD, SPÅNGA
Ett förslag till en påbyggnad av befintlig tillbyggnad, samt ett uterum med inomhustrappa till källaren. Förslaget innebar en återgång till en mer traditionell stil.
Status: Skiss 2018.
TILLBYGGNAD GRYTA, NORRTÄLJE
Ett sommarhus får två extra sovrum i samma stil som originalhuset. Några steg ner ger extra takhöjd.
Status: Bygglov beviljat 2017. Färdigställt 2018.
OM- OCH TILLBYGGNAD
Tillbyggnader och stilförskjutning mot originalåret.
Status: Bygglovshandlingar färdigställda 2017. Ej utfört.
FASADÄNDRING, BROMMA
Nytt fönster i funkisbyggnad.
Status: Bygglov beviljat 2018. Färdigställt 2018.
TILLBYGGNAD, STUVSTA
Utbyggnad i samma stil som originalhuset.
De sociala ytorna på entréplanet utökas med en ordentlig matplats. Samtidigt bildas en skyddad uteplats utanför köket..
Bygglov beviljat 2017. Färdigställt.
ATTEFALLSTILLBYGGNAD, SALTSJÖ-BOO
15 kvm i samma stil som ursprungshuset. A-handlingar, brandskyddsdokumentation,
konstruktionsritningar, u-värdesberäkningar och kontrollplan.
Status: Tillstånd beviljat 2017. Färdigställt.
NYBYGGNAD UTHUS, VALLENTUNA
Ett uthus i två plan, totalt 80 kvm BTA. Ritningar, tekniskt snitt, förenklad kontrollplan.
Status: Bygglov beviljat 2017.
OM- OCH TILLBYGGNAD AV FRITIDSHUS. NYTT ATTEFALLSHUS. RÅDMANSÖ
Utbyggnad i samma stil som originalhuset. Modernisering av byggnadens system mm.
Status: Bygglov och bygganmälan beviljade 2017.
NYA KUPOR, VINDSINREDNING MM, VILLA I LIDINGÖ
Även fasadändringar och ny planlösning mm.
Status: Bygglov beviljat 2017.
OM- OCH TILLBYGGNAD AV VILLA, KUMMELNÄS
Nytt vardagsrum i tillbyggnad om ca 35 kvm i traditionell stil. Flytt av kök mm.
Status: Bygglov och -anmälan färdigställda 2017.
VILLATILLBYGGNAD I SVINNINGE
Ombyggnad och två tillbyggnader. Bilden visar en första skiss.
Status: Bygglov beviljat 2017.
LÄGENHETSOMBYGGNAD SÖDERMALM
En ny balkongdörr från köket.
Status: Bygglov beviljat 2017. Färdigställt.
FARSTUKVIST TÄBY
Farstukvist med ovanpåliggande terrass och frontespis i traditionell stil i Täby.
Status: Bygglov beviljat 2017.
OMBYGGNAD VILLA, HUDDINGE
Två nya burspråk och ett nytt fönster på en 80-talsvilla.
Status: Bygglov beviljat 2017.
OMBYGGNAD LÄGENHET, GAMLA STAN
Lägenheten utökades med en bit av trapphuset och ett f d hissmaskinrum - som fick ändrad takhöjd och ett nytt takfönster. Fastigheten är blåklassad av Stadsmuseet.
Status: Bygglov beviljat 2017.
TERRASSER, ENSKEDE
Två nya terrasser och ett nytt takfönster på ett flerbostadshus.
Status: Bygglov beviljat 2017.
FARSTUKVIST, GAMLA ENSKEDE
Tillbyggnad i traditionell stil med ovanpåliggande terrass.
Status: Bygglov beviljat 2017. Teknisk sektion utförd 2017.
OM- OCH TILLBYGGNAD, ESKILSTUNA
Status: Skiss utförd 2016. Bygglov uterum färdigställt och beviljat 2018.
PLANERING AV LÄGENHETSOMBYGGNAD/KÖK, REIMERSHOLME, STOCKHOLM
Status: Förslag utfört 2016. Färdigställt.




































































































































